3 Bedroom
3 Bathroom
1605 sqft
Forced Air
$429,000
This well-maintained home offers 3 bedrooms and 3 bathrooms across two finished levels, plus an unfinished basement, for a total of 2,331 sq. ft. The upper level features all three bedrooms, including a spacious primary suite with multiple closets, two full bathrooms, and a convenient laundry room. The main floor boasts hardwood flooring, great natural light, and a chef-inspired kitchen complete with a large island, stainless steel appliances, and stylish backsplash-perfect for entertaining. Durable Hardi siding, great curb appeal, and a double concrete driveway enhance the exterior. Enjoy a single attached garage, room for RV parking, and a partially fenced yard, making this home both functional and inviting. (id:5136)
Property Details
|
MLS® Number
|
R3091617 |
|
Property Type
|
Single Family |
Building
|
BathroomTotal
|
3 |
|
BedroomsTotal
|
3 |
|
Appliances
|
Washer, Dryer, Refrigerator, Stove, Dishwasher |
|
BasementDevelopment
|
Unfinished |
|
BasementType
|
N/a (unfinished) |
|
ConstructedDate
|
2023 |
|
ConstructionStyleAttachment
|
Attached |
|
ExteriorFinish
|
Composite Siding |
|
FoundationType
|
Concrete Perimeter |
|
HeatingFuel
|
Natural Gas |
|
HeatingType
|
Forced Air |
|
RoofMaterial
|
Asphalt Shingle |
|
RoofStyle
|
Conventional |
|
StoriesTotal
|
3 |
|
SizeInterior
|
1605 Sqft |
|
TotalFinishedArea
|
1605 Sqft |
|
Type
|
Duplex |
|
UtilityWater
|
Municipal Water |
Parking
Land
|
Acreage
|
No |
|
SizeIrregular
|
2970 |
|
SizeTotal
|
2970 Sqft |
|
SizeTotalText
|
2970 Sqft |
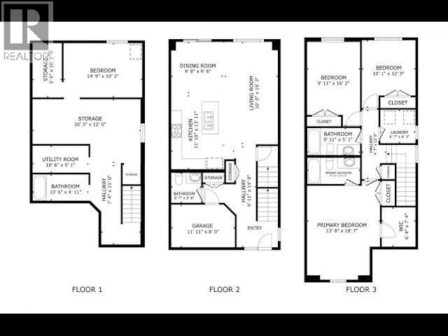
Rooms
| Level |
Type |
Length |
Width |
Dimensions |
|
Above |
Primary Bedroom |
13 ft ,8 in |
18 ft ,7 in |
13 ft ,8 in x 18 ft ,7 in |
|
Above |
Bedroom 2 |
10 ft ,1 in |
12 ft ,9 in |
10 ft ,1 in x 12 ft ,9 in |
|
Above |
Bedroom 3 |
9 ft ,1 in |
16 ft ,2 in |
9 ft ,1 in x 16 ft ,2 in |
|
Above |
Laundry Room |
11 ft |
6 ft |
11 ft x 6 ft |
|
Main Level |
Foyer |
7 ft ,6 in |
6 ft ,3 in |
7 ft ,6 in x 6 ft ,3 in |
|
Main Level |
Kitchen |
13 ft ,1 in |
11 ft ,1 in |
13 ft ,1 in x 11 ft ,1 in |
|
Main Level |
Living Room |
19 ft ,3 in |
10 ft |
19 ft ,3 in x 10 ft |
|
Main Level |
Dining Room |
9 ft ,8 in |
9 ft ,8 in |
9 ft ,8 in x 9 ft ,8 in |
https://www.realtor.ca/real-estate/29378449/8423-81-street-fort-st-john